Facilities
Our Facilities
- State of the art building
- High quality finish of office units of various sizes
- Accessible 24/7 to our tenants
- Preferential rates to tenants on meeting room space
- Shared reception
- Administrative support
- Security CCTV
- Shared Canteen facilities
- Professionally managed building
- Covered Bicycle Parking
- Facilities and meeting rooms of various sizes
- Extensive Parking
- Town Centre Location
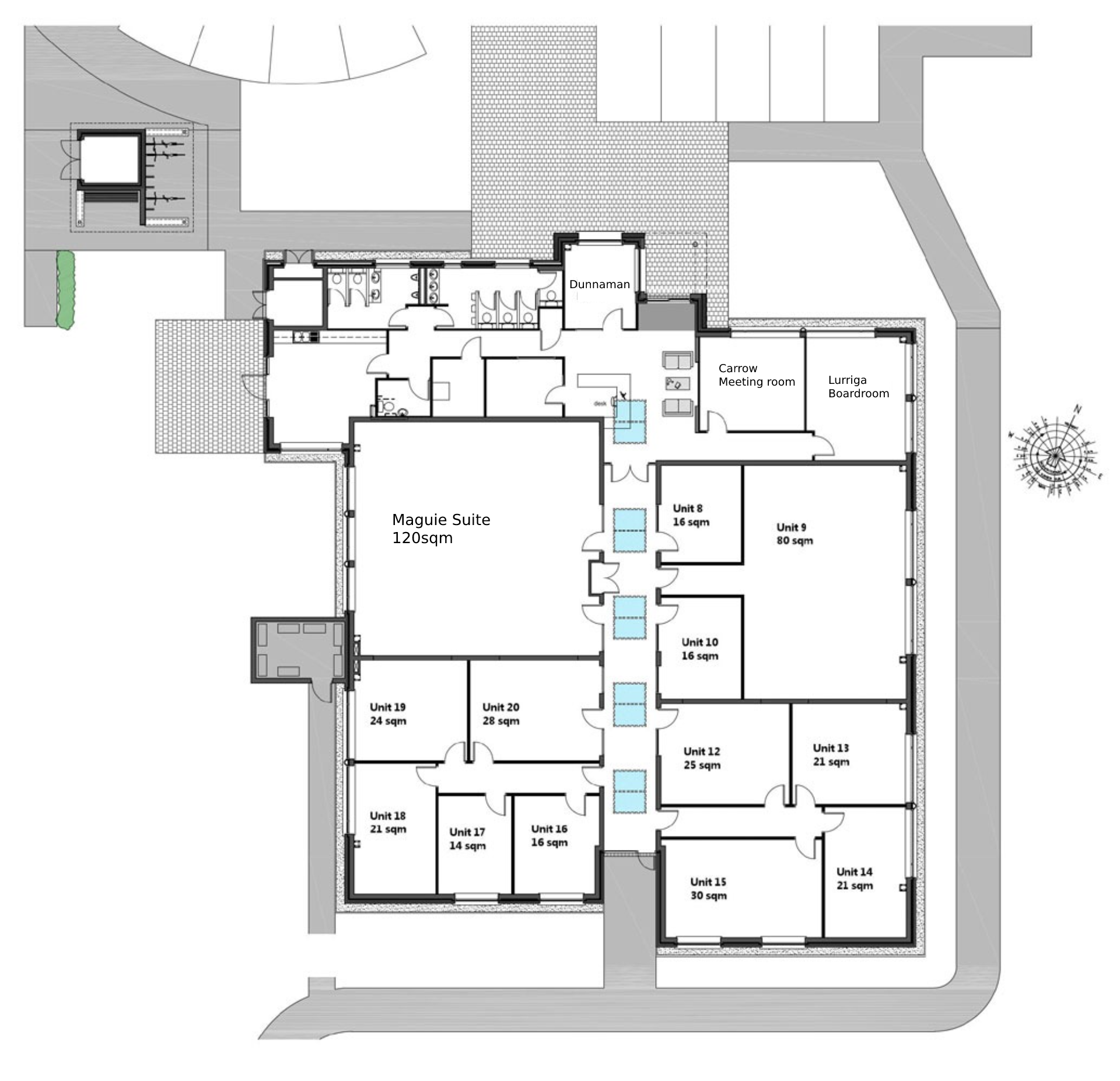
Unit |
Size |
|
| Unit 8 | 16sqm | Not available |
| Unit 10 | 16sqm | Not Available |
| Unit 12 | 25sqm | |
| Unit 13 | 21sqm | Not Available |
| Unit 14 | 21sqm | Not available |
| Unit 15 | 30sqm | Not available |
| Unit 16 | 16sqm | Not available |
| Unit 17 | 14sqm | Not available |
| Unit 19 | 24sqm | Not available |
| Unit 20 | 28sqm | Not available |
| Room 5 Carrow | 11sqm capacity 4 | |
| Room 6 Dunaman | 20sqm capacity 10-12 | |
| Room 7 Lurraga | 23sqm capacity 14-16 | |
| The Maigue Suite | 120sqm Capacity 180 theatre | |
| Unit 9 | 80sqm | |
Croom Community Enterprise Centre Unit Floor Plan
